Ninove03.jpg
1   2   3   4   5   6   7   8   9   10   11  

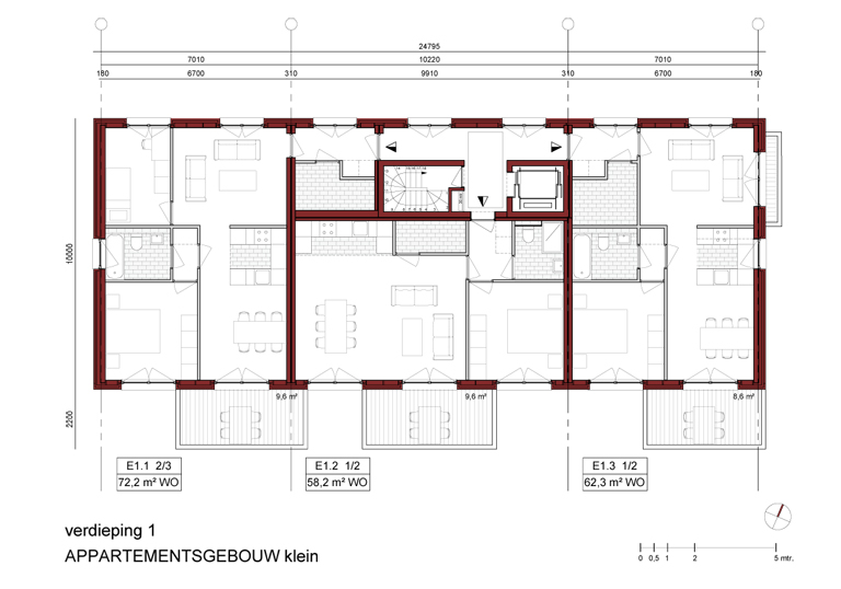
Projekt: Sozialer Wohnungsbau mit 72 Wohneinheiten, Pollarewijk in Ninove (B)
Städtebau- und Architekturwettbewerb
Auftraggeber: Ninove Welzijn
Zusammenarbeit: META architectuurbureau bvba, Raven Rumes Stedenbouw
Datum: 12/2013