gemert02.jpg
1   2   3   4   5   6   7   8  

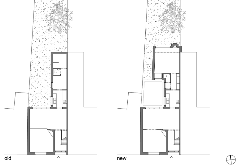
Projekt: Umbau und Erweiterung eines Wohnhauses, Gemert (NL)
Auftraggeber: Privat
Bauingenieur: CAM Vermeij, Uden
Projektphase: ausgeführt