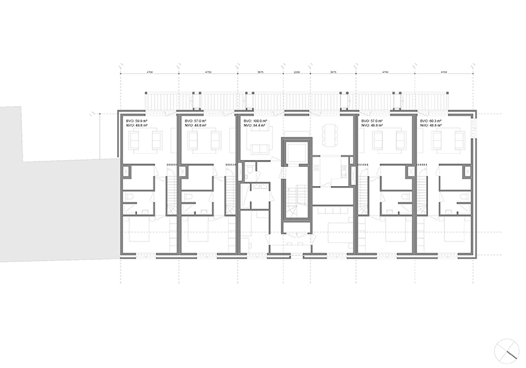
025_VGZ_Gent_+1.jpg
1   2   3   4   5   6   7   8   9   10   11   12   13   14   15  

Projekt: 12 soziale Wohnungen, Vogelenzang, Gent (B)
Architekturwettbewerb – 1. Preis
Auftraggeber: WoninGent cvba
Bauingenieur: Util
Installation: Macobo
3d-Visualisierung: illustrate.ch
Photographie: Karin Borghouts
Projektphase: Ausgeführt