023_FAL_07.jpg
1   2   3   4   5   6   7   8   9   10   11  

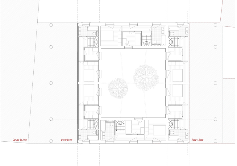
Projekt: Tuincarré: 6 Einfamilienhäuser, Antwerpen (B)
Auftraggeber: CIP N.V.
Bauingenieur: Establis
Installation: Ingenium
Zusammenarbeit: Neuentwicklung Baublock Falconplein-Zeemanshuis mit Caruso St John, Bovenbouw, ONO Architectuur, Rapp+Rapp und Landinzicht
Projektphase: Bauausschreibung